




Двухэтажные дома в новом жилом комплексе Grand Townhouses
Элитные двухэтажные таунхаусы на продажу в Кошарице — Grand Townhouses
Grand Townhouses — это современный закрытый комплекс, предлагающий просторные двухэтажные таунхаусы в живописном районе села Кошарица, всего в 1 км от знаменитого курорта Солнечный Берег. Это идеальное место для тех, кто ценит комфорт, тишину и экологически чистую среду, где горный воздух гармонично сочетается с морским бризом.
Комплекс спроектирован для круглогодичного проживания и отдыха. Всего предусмотрено 24 таунхауса, каждый из которых выполнен с использованием современных строительных технологий и качественных материалов.
Основные характеристики
Начало строительства: конец мая 2025 года
Количество таунхаусов: 24
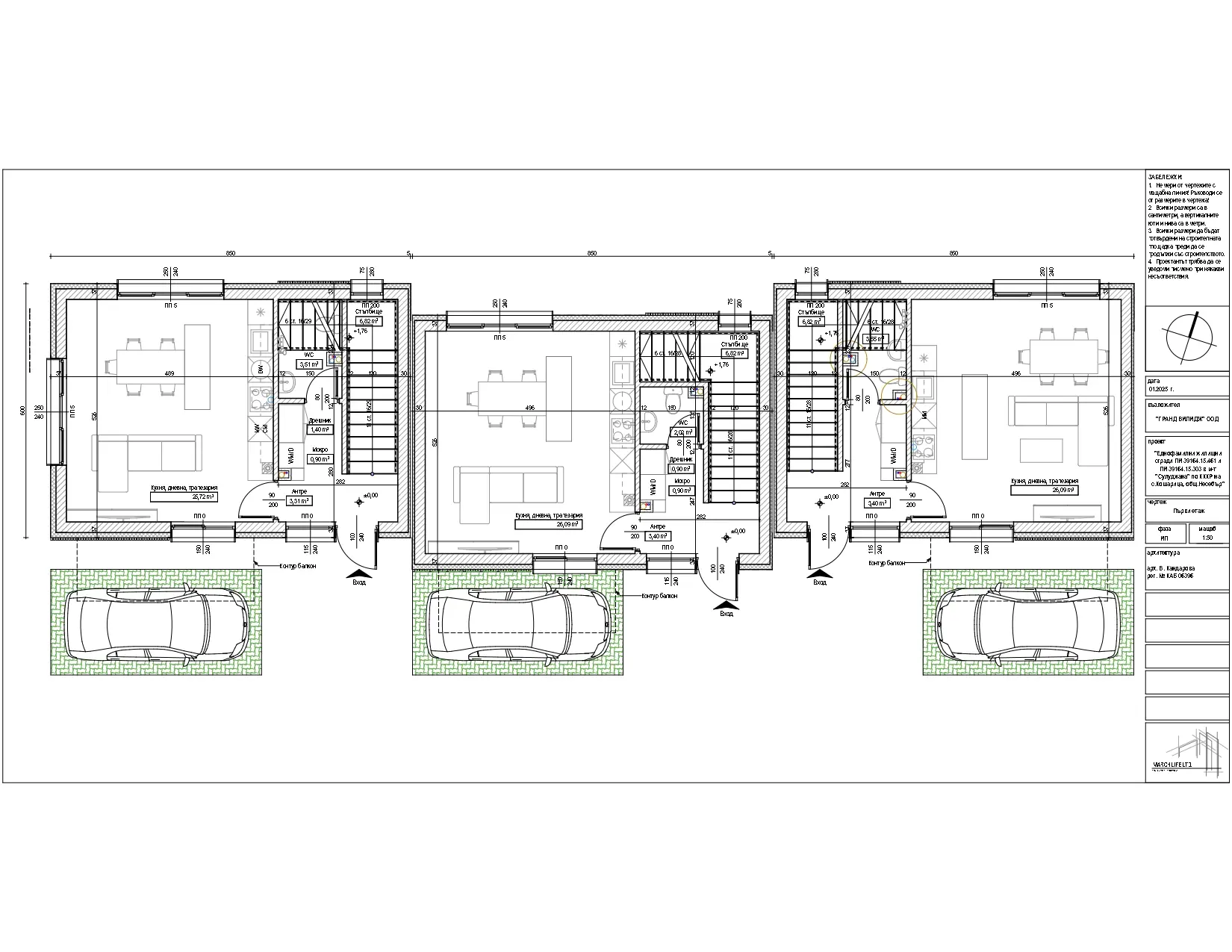
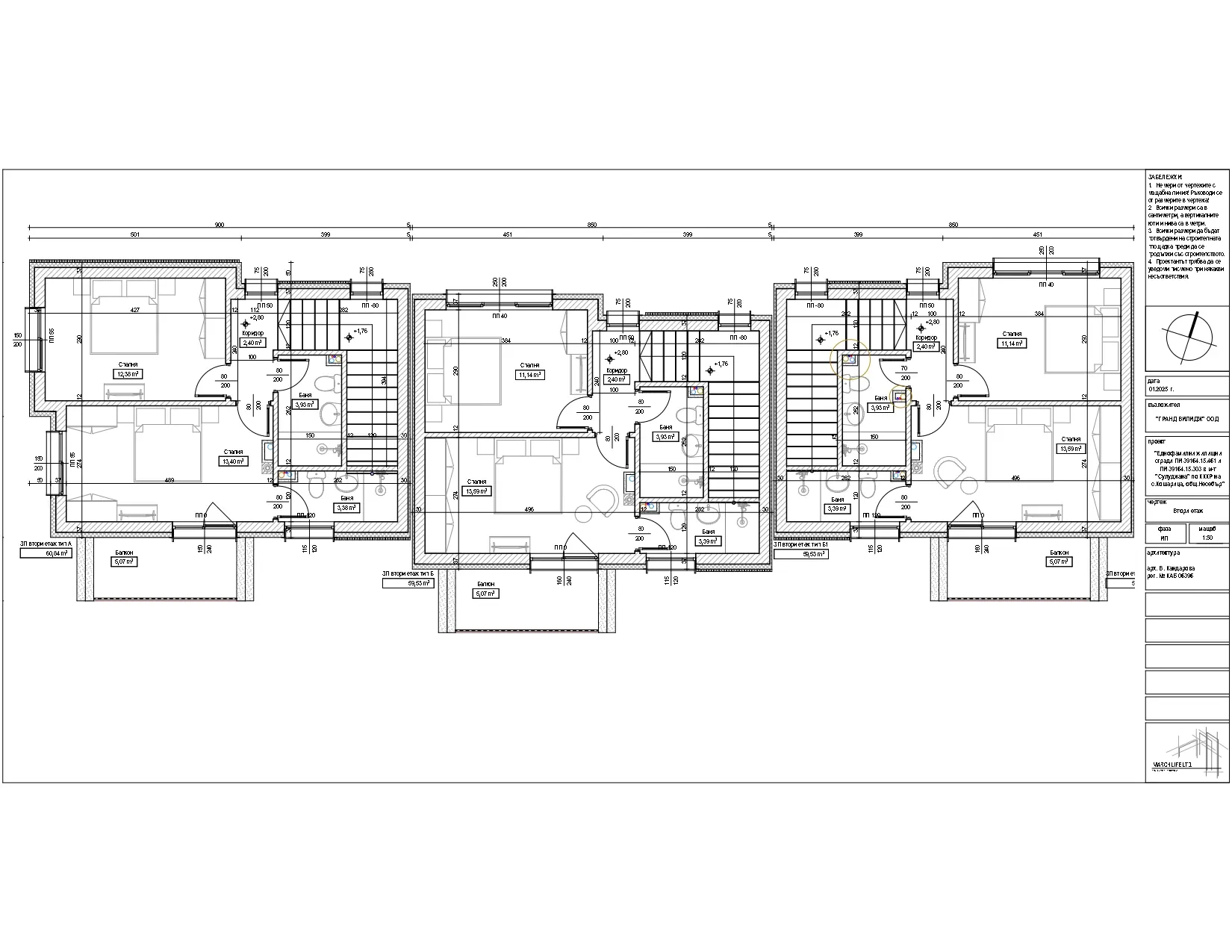
Этажность: 2 этажа
Площадь: 110 м² + 40 м² английский дворик
Планировка:
— 1 этаж: кухня-столовая, санузел
— 2 этаж: две спальни, ванная, коридор, балконЦена: 185 000 € (с мебелью и техникой)
Отделка: новый ремонт, качественная сантехника, современная мебель и встроенная техника включены в стоимость
Локация: всего 1 км до Солнечного Берега
Условия покупки
Первоначальный взнос: 10%
Рассрочка: 18 месяцев без процентов
Продление рассрочки: дополнительный срок 1,5 года с процентной ставкой 9%
Преимущества Grand Townhouses
Удобное расположение — всего в 1 км от пляжей, ресторанов и магазинов Солнечного Берега.
Комфорт и современный стиль — просторные дома с функциональной планировкой, готовые к проживанию.
Английский дворик — уютная и приватная зона для отдыха на свежем воздухе.
Инвестиционная привлекательность — возможность выгодной сдачи в аренду и сохранения стоимости недвижимости.
Закрытый комплекс — безопасность, спокойствие и уютная атмосфера.
Grand Townhouses — это не просто жильё у моря, а уникальная возможность инвестировать в качественную недвижимость в одном из самых востребованных районов побережья Болгарии. Просторные планировки, удобное расположение и выгодные условия покупки делают эти таунхаусы идеальным выбором для тех, кто мечтает о доме у моря.
Не упустите шанс стать владельцем современного и стильного таунхауса в Кошарице — начните новую жизнь в гармонии с морем и природой!
Скачать прайс: Price Grand Townhouses
- Озеленение
- Охрана
- Паркинг
- АдресКошарица
Новейшая недвижимость
Кошарица, Бургасcкая обл.
- 2
- 2
- 110 m²



































